안녕하세요! 세레네휴 홈페이지에 오신 것을 환영합니다.

저희는 제주도의 아름다운 자연과 문화를 즐길 수 있는 공유별장을 제공하고 있습니다.

제주도는 세계자연유산으로 지정된 아름다운 섬으로, 바다와 산, 오름 등 다양한 자연 경관을 즐길 수 있으며, 전통적인 문화와 현대적인 도시의 매력을 함께 느낄 수 있는 곳입니다.

저희 세레네휴는 이러한 제주도의 매력을 더욱 즐길 수 있도록 편안한 공간을 제공하고 있습니다.

저희는 고객님들이 제주도에서 편안하고 즐거운 시간을 보낼 수 있도록 최선을 다할 것입니다.

언제든지 저희 홈페이지를 방문하여 세레네휴의 회원 혜택을 살펴보시고, 회원가입을 통해 제주도에서의 특별한 추억을 만들어보세요.


감사합니다.

공사 개요

본 사업은 공유별장 (세레네 휴) 에 대한 건축 및 건물에 대한 소유를 공유하여 이용함을 목적으로 함.

세레네 휴 공유별장

세레네 휴 공통 개요

위치
제주도 서귀포시 토평동 337-4, 337-2 (공사 예정)

총 세대수

공급 세대 2세대                  

세레네휴 공간의 개념

건축물에 대한 소유권을 다인(多人)이 공유

고품질의 별장을 합리적인 가격으로 다인(多人) 에 공급함으로써, 건축물에 대한 접근성을 높히고

다인(多人) 에게 쾌적한 환경과 삶의 질 향상을 높히는 역할을 할 수 있는 공유별장



건축 예정지

제주도 서귀포시 토평동 337-4 (TPB)

오너 베네핏 제휴 시설

세레네 휴 오너 제공 약 25개의 골프회원권




토평 타입 B (TPB)

TOPYEONG TYPE B (TPB)

위치
Location
제주도 서귀포시 토평동 337-4

구조

Room arrangement

침실 4, 화장실 6, 거실 1, 주방 (IN/OUT), 바베큐 가든, 썬큰 가든, 세탁실, 주차장, 인피니티 풀, 발코니 등
면적
Area
 1F - 86.26 m²
2F - 59.69 m² 

세레네휴 공간의 설계 개념

Model : 337-4

GROUND CARVING

단차를 가진 대지의 형상에서 CARVING으로 빈 공간을 형성하고빈 공간들을 중심으로 프라이빗하며, 

다양한 공간감을 느낄 수 있도록 조성


절제된 직육면체형의 인피니티 풀이 프라이빗한 담장에 둘러싸여 조성 그라운드레벨로 진입하면 건물 앞으로 데크 형성

현관 및 거실에서 직접 외부공간으로 접근가능

LDK 공간이 전면창호를 통해 데크 및 인피니티 풀을 조망하고 있으며 후면으로 2층으로 통하는 계단공간이 형성

건축 섹션

Architectural section




조감뷰




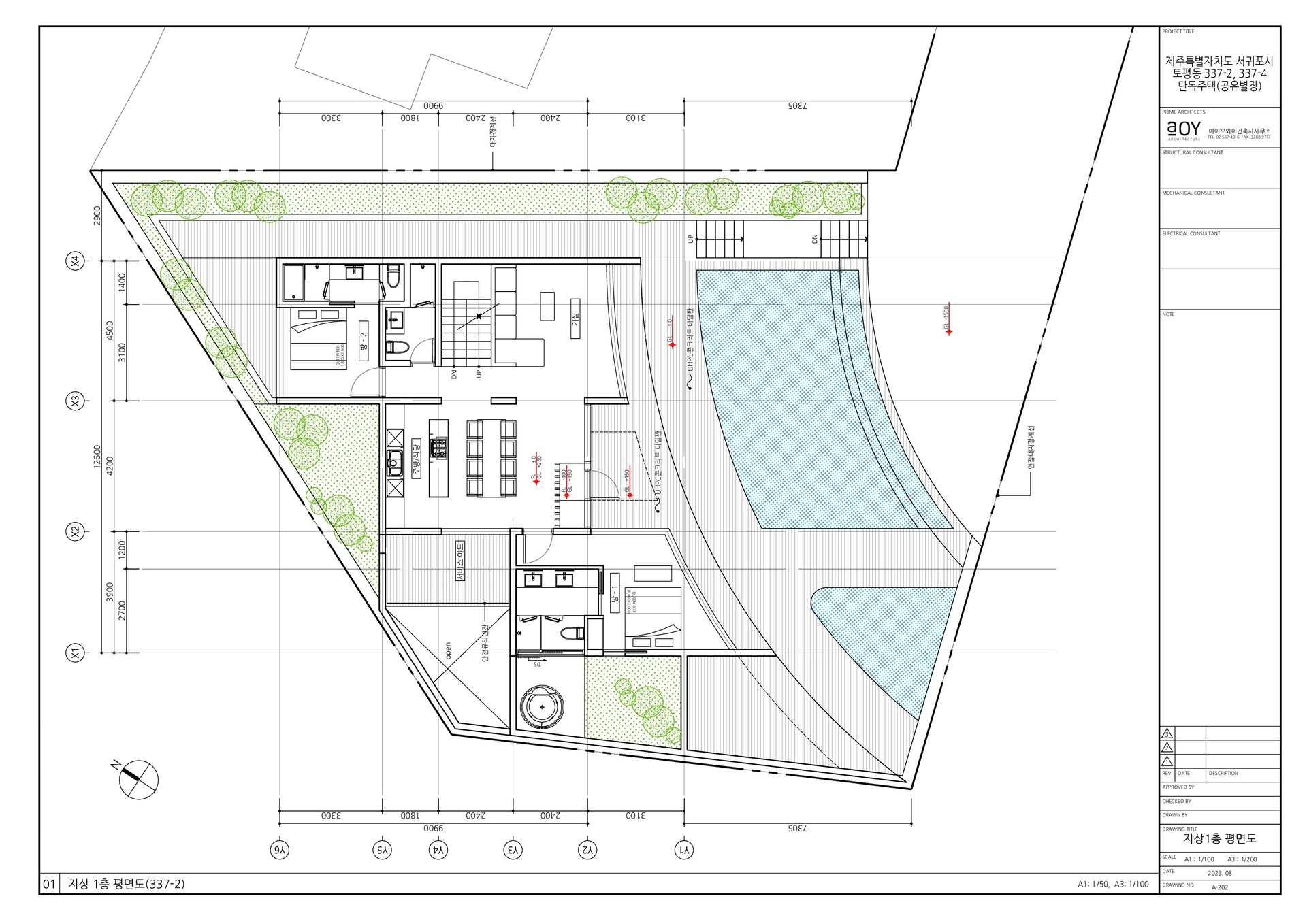
지상 1층


면적
75.52 m²
평수
24.05 평
층 구성· 방 2
· 거실
· 주방 (IN)
· 주방 (OUT)
· 바베큐 가든
· 화장실 3
· 인피니티 풀 (야외)




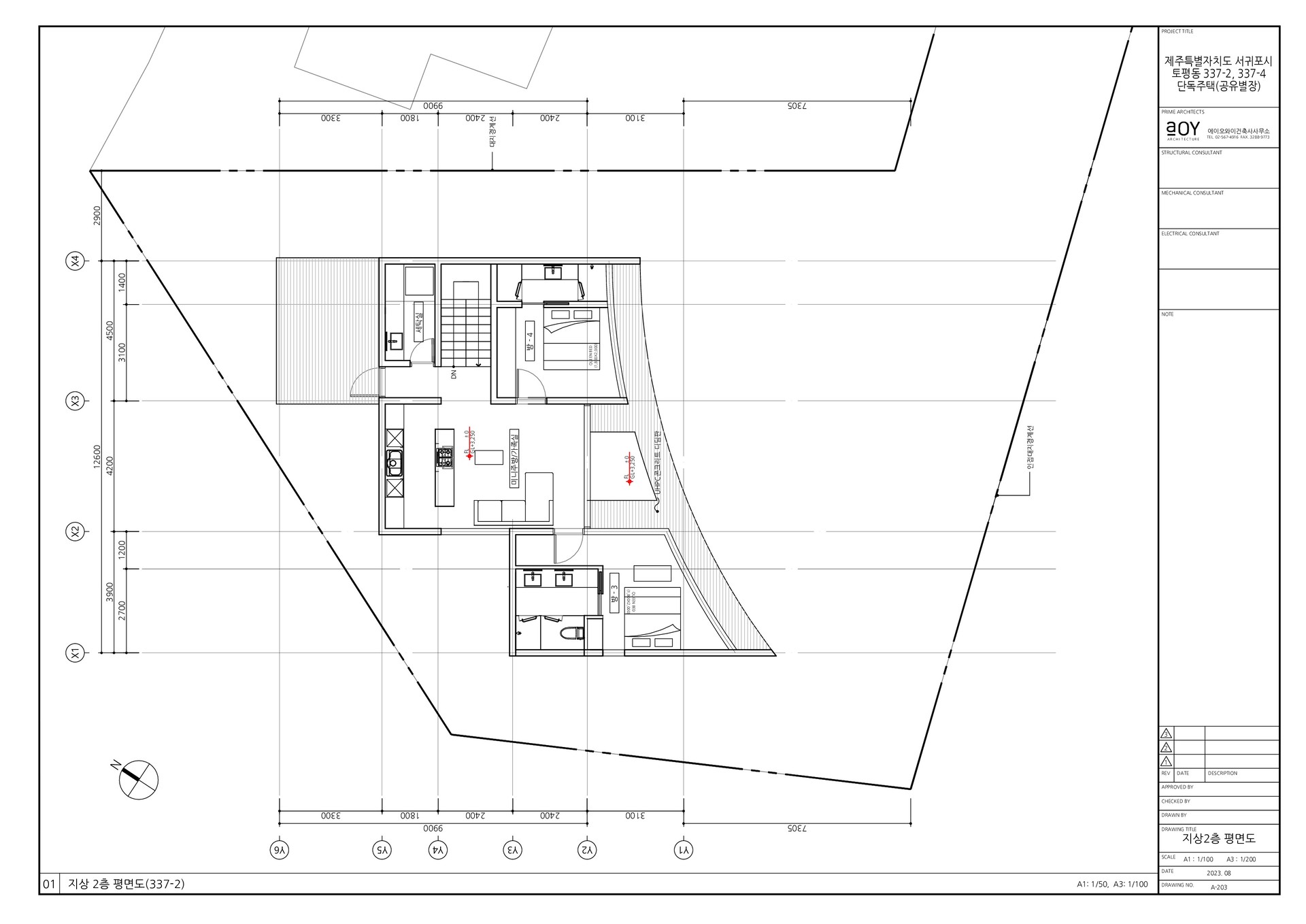
지상 2층


면적
48.34 m²
평수
14.62 평
층 구성· 방 2
· 화장실 2
· 세탁실






토평 타입 A (예정)

TOPYEONG TYPE A

위치
Location
제주도 서귀포시 토평동 337-2

구조

Room arrangement

침실 4, 주방 2, 거실 2, 화장실 6, 서비스 야드, 인피니티 풀, 온수 풀, 자쿠지, 세탁실
면적
Area
B1 - 58.80 m²
1F - 83.97 m²
2F - 73.18 m² 

세레네휴 공간의 설계 개념

Model : 337-2

GROUND CARVING

단차를 가진 대지의 형상에서 CARVING으로 빈 공간을 형성하고 빈 공간 들을 중심으로 프라이빗하며, 

다양한 공간감을 느낄 수 있도록조성

라운드 형의 인피니티 풀이 프라이빗한 담장에 둘러싸여 조성 , 그라운드레벨로 진입하면 건물 앞으로 데크 형성

현관 및 거실에서 직접 외부공간으로 접근가능

LDK 공간이 전면창호를 통해 데크 및 인피니티 풀을 조망하고 있으며 후면으로 2층으로 통하는 계단공간이 형성

건축 섹션

Architectural section

조감뷰

B1F


면적
49.01 m²
평수
14.83 평
층 구조· 와인 저장고
· 화장실


1F


면적
75.28 m²
평수
22.77 평
층 구조· 방 2
· 주방
· 거실
· 서비스 야드
· 인피니티풀
· 온수풀
· 자쿠지
· 화장실 3


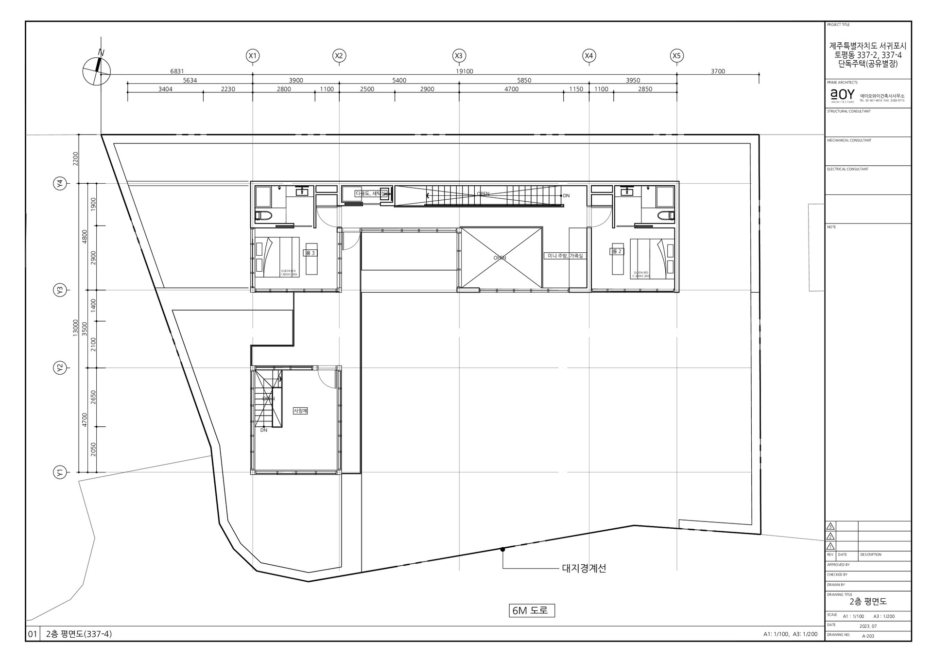
2F


면적
71.69 m²
평수
21.69 평
층 구조· 방 2
· 주방
· 거실
· 세탁실
· 화장실 2